Конфигурация «ReClouds» – компонент nanoCAD Облака точек для обработки данных 3D-сканирования и решения инженерных и информационных задач в области геодезии, машиностроения, строительства, инфраструктурного и метрологического мониторинга.
Задачи
- Предварительный анализ и обработка результатов 3D-сканирования
- Классификация и сегментация облаков точек
- Создание ЦММ/ЦМР
- Послойная векторизация и построение поэтажных планов
- Поиск элементарных геометрических форм и сложных технологических систем
- Вычисление площадей и объемов
- Поиск геометрических коллизий
- Трехмерное моделирование, в том числе имитационное
- Мониторинг технического состояния объектов и экологической обстановки
Ключевые возможности
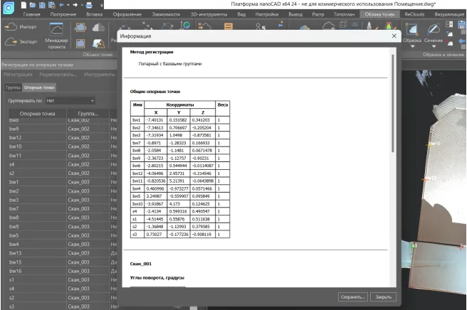
Сшивка облаков по опорным точкам
Взаимное ориентирование нескольких облаков точек. Регистрация позволяет найти параметры трансформации для произвольного количества групп опорных точек. Используются два способа: попарный и итеративный
Проверка качества сшивки и контроль невязок
Контроль невязок по каждой точке позволяет оценить качество регистрации. Опорные точки с большой невязкой можно исключить или изменить вес таких точек, после чего выполнить повторную регистрацию
Создание облака точек из модели
Инструмент преобразует указанную модель в облако точек с заданной плотностью
Сшивка сканов по парам соответствующих точек
Команда позволяет провести регистрацию облаков вручную, указав пары соответствующих точек на экране
Совмещение облака с моделью
Команда выполняет детальное совмещение облака точек с эталонной моделью при наличии относительно небольшого смещения
Прореживание облаков точек
Команда уменьшает количество точек в выбранном облаке и позволяет избавиться от избыточной насыщенности, которая может существенно увеличивать время обработки больших облаков
Фильтрация данных
Настройка фильтров атрибутов (метаданных) и классов точек импортируемых файлов
Классификация и верификация земли
Алгоритм автоматической идентификации земли, а также команда верификации земли, обеспечивающая ручное уточнение автоматически классифицированных точек
Именованные виды
Команда сохраняет сегменты облака точек, полученные в результате работы инструментов создания обрезки или сечения
Создание и перенос сечений
Команда осуществляет параллельный перенос любого сечения в выбранном видовом экране с заданным шагом вперед или назад
Классификация сечений по атрибуту
Обширный набор инструментов и параметров для автоматической классификации по заданному критерию
Классификация точек в облаке
Классификация точек, расположенных в заданном диапазоне высот относительно поверхности земли. Также возможна классификация- любых объектов по высоте от поверхности земли (конструкции, здания, опоры ЛЭП и др.)
Послойная векторизация
Автоматическое построение множественных сечений облаков с заданным шагом, их последующая векторизация и создание растровых изображений
Построение поэтажного плана
Создание векторного поэтажного плана по данным облака точек. Облако может состоять из наружного скана здания и сканов его внутренних помещений
Создание 3D-сети
Команда выполняет 3D-триангуляцию облаков точек объемных объектов с построением сети. Может использоваться для триангуляции зданий и других наземных объектов
Создание TIN
Команда создания нерегулярной триангуляционной сети на основе облака точек. Построенная сеть представляет собой набор ребер, формирующих непересекающиеся треугольники
Наложение текстур
Набор команд, создающий текстурированные поверхности в соответствии с задачами и исходными данными. Существует возможность наложения плоской текстуры, текстуры из растрового изображения и текстурного атласа
Редактирование сетей
Богатый набор инструментов редактирования построенных сетей. Включает оконтуривание, разрезание, классификацию, упрощение, заполнение разрывов и обрезку сети
Поиск ключевых линий
Команда ищет ключевые линии, такие как тальвеги, бровки и т.п. Возможен поиск как по облаку точек, так и по поверхности
Вписывание элементарных форм
Набор команд, создающих объекты (прямая, плоскость, сфера, цилиндр), вписанные в облако точек или сечение
Глобальный поиск форм
Команда, осуществляющая поиск элементарных форм (плоскость, сфера, цилиндр, конус, тор) в облаке точек
Поиск плоскостей и труб в облаке
Инструменты для поиска труб и плоскостей в облаке точек на основании заданных параметров
Создание трассы трубопровода
Визуализация и согласование осей сегментов трубопровода с построением единой трассы в виде 3D-полилинии. Автоматический расчет и определение поворотных точек
Создание объектов по формам
Команда создает трехмерные векторные объекты на основе распознанной геометрии в облаке точек
Расчет разности поверхностей
Команда, позволяющая рассчитывать и создавать поверхность разности двух других поверхностей
Расчет объема
Набор инструментов для расчета объемов между моделью и облаком точек, внутри контура или между моделями. Вычисляется общий, балансовый объем, а также рассчитываются величины снимаемого и насыпаемого объемов
Расчет площади
Команда, предназначенная для определения площади участка поверхности. Рассчитываются как общая площадь, так и площади в проекциях на плоскости
Сравнение облака точек
Инструмент, позволяющий оценить степень совпадения двух облаков точек между собой или облака точек с моделью
Отображение отклонений
Режим отображения результатов выполненного сравнения с возможностью настройки дополнительных параметров
